modern living on historic 8th street

8th street unit

5th ave units

amenities

location:

modern living on historic 8th Street surrounded by mature trees

walking distance from downtown Fargo, Island Park, & the Red River trails

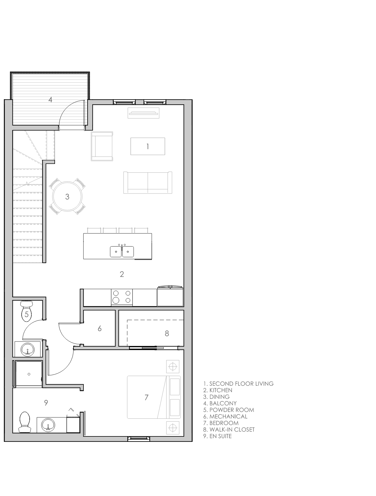
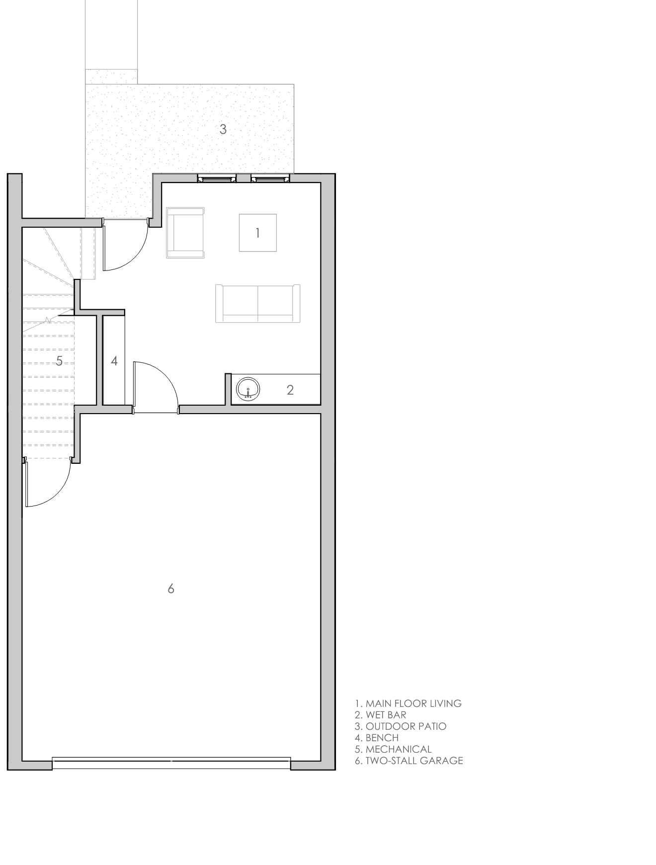
units:

Three bedrooms, each with its own walk-in closet and en suite

Three and a half baths

Heated Two-stall garage

Flexible First-floor living space with wet bar

First-floor outdoor patio

Second-floor balcony off the main living space

kitchen includes custom cabinets, quartz countertops, & stainless steel appliances

units available for purchase or rent.

LISTING